高岡市戸出町四丁目
国道156号線沿いの物件です。
-
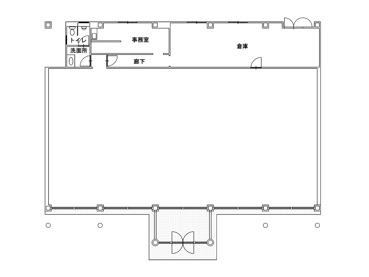
- 種類
- 売店舗
-
- 所在地
- 高岡市戸出町四丁目
-
- 交通
- JR城端線 戸出 徒歩17分
-
- 価格
- 27,000,000 円
-
- 土地面積
- 1158.27 ㎡(350.37 坪)
-
- 私道負担
- なし
-
- 地目
- 宅地
-
- 構造
- 鉄骨造亜鉛メッキ鋼板葺平家建
-
- 建物延面積
- 401.38 ㎡
-
- 築年月
- 1988年12月
-
- 駐車場
- 15台以上
-
- 用途地域
- 準住居地域
-
- 建ぺい率
- 60%
-
- 容積率
- 200%
-
- 前面道路
- 東 約22m , 西 約6m
-
- 上水道
- 公営水 公共下水道
-
- ガス
- プロパンガス
-
- 設備
- トイレ 給湯
-
- 負担金
- なし
-
- 引渡し時期
- 即時
-
- 取引態様
- 媒介
-
- 権利
- 所有権
-
- 周辺環境
- バス停光明寺 200m
-
- 備考
- ■現況有姿売買■告知事項有■売主の契約不適合責任は免責
-
- 物件番号
- 2025I01











